Project Overview

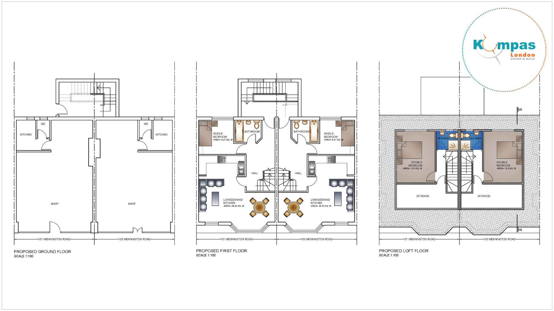
Proposed development of four self contained flats at the rear of 131 Wennington Road Rainham.

The application site comprises two shops at ground floor level, each with living accommodation above. This combination is replicated throughout the neighbouring properties along the terrace. The land to the rear of the site features numerous outbuildings which appear to be for storage
purposes. The site is neither listed, nor is it within a conservation area.
 

Project Detail

  • Client Name:
    N/A
  • Client Company Name:
    N/A
  • Project Start Date:
    2017-05-01
  • Project End Date:
    2017-08-01
  • Client Comment:
    N/A

Quick Contact

Recent Portfolio

See all our works that we do for our clients

Do you need architectural or construction services ?